
MDPL’s Advocacy Committee will review the following applications on the upcoming Historic Preservation Board agenda. Here is a sneak peek of the projects to be heard and links to learn more. Have a comment about a project you would like to share with our committee? Contact us.
To review the Historic Preservation Board Agenda, including public participation information: Click Here
- 1800 Michigan Avenue
- 1730 Jefferson Avenue.
- 1020 Pennsylvania Avenue.
- 1020 Pennsylvania Avenue.
- 1826 Collins Avenue.
- 7305 Collins Avenue.
- 3193 Royal Palm Avenue.
- 3193 Royal Palm Avenue.
- 1300 Lenox Avenue.
- 833 6th Street
ITEMS PREVIOUSLY SCHEDULED ON THE JUNE 17, 2025 AGENDA
HPB24-0641, 1800 Michigan Avenue.

Proposed Structure
Click to view the full City of Miami Beach Staff Report
An application has been filed requesting a Certificate of Appropriateness for the total demolition of the existing single-family home and the construction of a new single-family home.
HPB24-0632, 1730 Jefferson Avenue.
Current Site
Proposed Structure
Click to view the full City of Miami Beach Staff Report
An application has been filed requesting a Certificate of Appropriateness for the partial demolition and renovation of the existing home and accessory buildings including the construction of attached additions and variances from the required setbacks, lot coverage, unit size and open space requirements.
HPB25-0647 a.k.a. HPB 7431, 1020 Pennsylvania Avenue.
Current Site
Click to view the full City of Miami Beach Staff Report
An application has been filed requesting a modification to a previously issued Certificate of Appropriateness for the after-the-fact demolition of the previously existing buildings on the site. Specifically, the applicant is requesting the deletion of Condition C.1. of the final order.
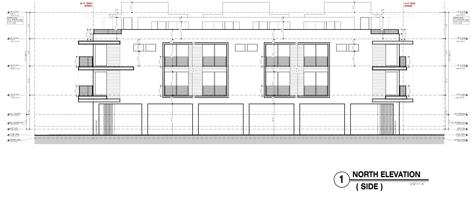
HPB24-0618, 1020 Pennsylvania Avenue.
Current Site
Proposed Structure
Click to view the full City of Miami Beach Staff Report
An application has been filed requesting a Certificate of Appropriateness for the construction of a multi-family residential building on a vacant lot including one or more waivers.
HPB25-0651, 7305 Collins Avenue
Current Site
Proposed Structure
Click to view the full City of Miami Beach Staff Report
An application has been filed requesting a Certificate of Appropriateness for exterior modifications including but limited to the introduction of a new shade structure, an outdoor bar counter and a mural, and a variance to exceed the hours of operation for an outdoor bar counter.
SINGLE-FAMILY HOMES
HPB25-0659, 3193 Royal Palm Avenue.
Current Site

Proposed Structure
Click to view the full City of Miami Beach Staff Report
An application has been filed requesting a Certificate of Appropriateness for construction of an attached addition to an individually designated historic single-family home, including setback variances.
HPB25-0655, 3193 Royal Palm Avenue.
Current Site
Click to view the full City of Miami Beach Staff Report
An application has been filed requesting the Historic Preservation Board’s recommendation for a single-family ad valorem tax exemption for an addition to a renovated and restored individually designated historic single-family home.
HPB25-0646 a.k.a. HPB21-0482, 1300 Lenox Avenue.
Current Site
Proposed Structure
Click to view the full City of Miami Beach Staff Report
An application has been filed requesting modifications to a previously issued Certificate of Appropriateness for the partial demolition, renovation and restoration of the existing single- family home, including the construction of attached and detached additions and variances from the required setbacks, open space, lot coverage and retaining wall regulations. Specifically, the applicant is requesting design and variance modifications.
HPB24-0639, 833 6th Street – Possible Designation of an Historic Site.

Click to view the full City of Miami Beach Staff Report
A presentation by the City of Miami Beach Planning Department to the Historic Preservation Board of a Preliminary Evaluation and Recommendation Report relative to the possible designation of the South Shore Community Center located at 833 6th Street, as a local historic site.










































