
MDPL’s Advocacy Committee will review the following applications on the upcoming Historic Preservation Board agenda. Here is a sneak peek of the projects to be heard and links to learn more. Have a comment about a project you would like to share with our committee? Contact us.
To review the Historic Preservation Board Agenda, including public participation information: Click Here
- 829 4th Street
- 7801 Atlantic Way
- 1245 Michigan Avenue
- 2740 North Bay Road
- 239 1st Street
- Collins Canal
REQUEST FOR CONTINUANCES/WITHDRAWALS
HPB22-0561, 829 4th Street
Current Site
Proposed Structure
An application has been filed requesting a Certificate of Appropriateness for the substantial demolition, renovation and restoration of the existing building on the site, the construction of an attached multi-family residential addition and a variance from the setback requirements.
HPB23-0572, 7801 Atlantic Way
Current Site
Proposed Structure
An application has been filed requesting a Certificate of Appropriateness for the total demolition of the existing single-family home and the construction of a new single-family home.
HPB23-0566, 2740 North Bay Road
An application has been filed requesting that the designation of Historic Single-Family Residence be removed from the property.
Current Site
CONTINUED ITEMS
HPB23-0564, 1245 Michigan Avenue
Current Site
Proposed Structure
An application has been filed requesting a Certificate of Appropriateness for the introduction of a temporary daycare facility within Flamingo Park located along Michigan Avenue.
NEW APPLICATIONS
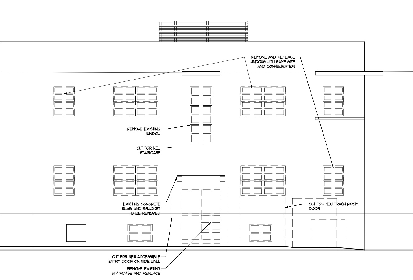
HPB23-0573, 239 1st Street
Current Site
Proposed Structure
An application has been filed requesting variances from the minimum and average unit size requirements.
BOARD ORDER HISTORIC DESIGNATIONS
HPB22-0537, Collins Canal

A presentation by the City of Miami Beach Planning Department to the Historic Preservation Board relative to the proposed historic designation of the Collins Canal located between Biscayne Bay and Lake Pancoast as an individual local historic structure.





























