
MDPL’s Advocacy Committee has reviewed the following projects on the upcoming Historic Preservation Board agenda and offers our positions below. Have a comment about a project you would like to share with our committee? Contact us.
Please note: the lack of a position on a project does not indicate support for or opposition to that project. To review the Historic Preservation Board Agenda, including public participation information: Click Here
NEW APPLICATIONS
HPB23-0605 & HPB24-0617, 1525 Lenox Avenue
Current Site
Images of the site before emergency demolition.
Proposed Structure
(Please Note: the latest version to be reviewed by the Historic Preservation Board has removed the canopy shown at the roof level)
View Item Details on Agenda Page
Click to view the full City of Miami Beach Staff Report
An application has been filed requesting an after-the-fact Certificate of Appropriateness for the total demolition of the previously existing multi-family residential building and an application has been filed requesting a Certificate of Appropriateness for the construction of a new multi-family residential building, including one or more waivers.
MDPL Position: We thank the applicants for reviewing the project designs with our committee. We support the overall project including the waiver to reduce the height of the understory to something more consistent with the neighborhood scale. We also appreciate the reference to the prior historic building through the use of corner windows and other vocabulary. The new building is of its time but also appears to be compatible with the surrounding historic character of the neighborhood.
While we support the project subject to the staff recommendations, we continue to lament the loss of a contributing building within the Flamingo Park Historic District. We must do more to prevent demolition by neglect.
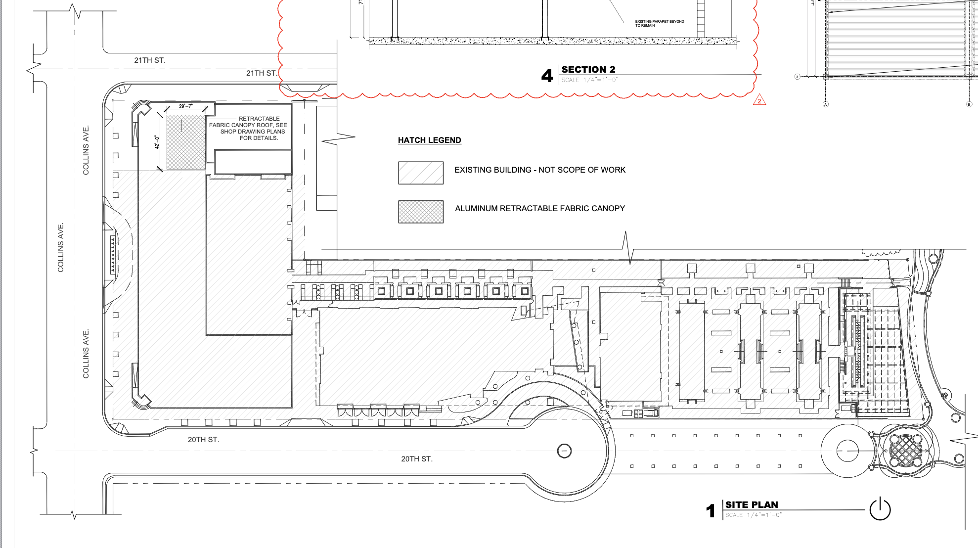
HPB24-0612, 2001 Collins Avenue
Current Site
Proposed Structure
View Item Details on Agenda Page
Click to view the full City of Miami Beach Staff Report
An application has been filed requesting a Certificate of Appropriateness for the installation of retractable canopy structure at the 2nd level roof deck.
MDPL Position: We support this project subject to staff recommendations.
HPB24-0619, 761 Jefferson Avenue
Current Site
Proposed Structure
View Item Details on Agenda Page
Click to view the full City of Miami Beach Staff Report
An application has been filed requesting a Certificate of Appropriateness for the partial demolition, renovation and restoration of the existing building.
MDPL Position: We support this project subject to staff recommendations. We are thrilled that this building, along with the two buildings next door, will be brought back to its former glory while providing housing in this residential neighborhood. This is an excellent example of taking the necessary steps to prevent the further decline of buildings within the historic district and prevent “demolition by neglect.” We look forward to seeing these three buildings come back to life through the thoughtful investment of the owners.
HPB24-0622, 1200 Meridian Avenue
Current Site
Proposed Structure
View Item Details on Agenda Page
Click to view the full City of Miami Beach Staff Report
An application has been filed requesting a Certificate of Appropriateness for the introduction of pickleball courts within Flamingo Park.
MDPL Position: We support this project subject to staff recommendations.
























